
Строительство и ремонт
СКОЛЬКО ЖЕ СТОИТ ШУМОИЗОЛЯЦИЯ КВАРТИРЫ?
Недавно статья о шумоизоляции вызвала море вопросов. И многие из Вас спросили сколько же это стоит?
Давайте сегодня на примере нашего объекта разберем этот вопрос.
Объект находится в элитном ЖК в историческом центре Питера. И знаете какая БОЛЬШАЯ проблема тут есть? Шумоизоляция! А точнее ее отсутствие.
Мы и заказчик еще на этапе разработки дизайн-проекта понимали, что шумоизоляция в квартире просто необходима. Впервые оказавшись на объекте мы ощутили на себе все прелести шума от ремонта соседей.
Хотим отметить, что в таких домах ремонт идет годами. А когда ремонт закончат все дольщики, обязательно кто-нибудь решит продать квартиру и новые жильцы, начнут все делать под себя заново. А значит снова никакой спокойной жизни, постоянные звуки перфоратора, штроборезов, молотков и т.д.
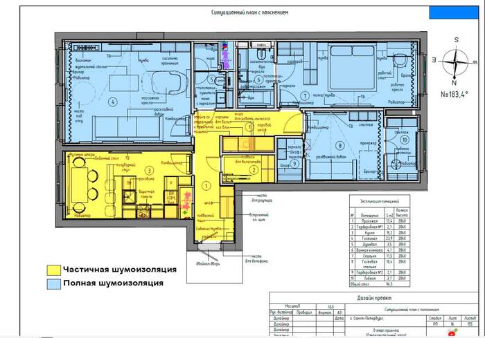
В каких помещениях делали шумоизоляцию на объекте?
Сейчас коротко расскажем об этой квартире. Ее площадь 96,5 м2.
В квартире сделана полная шумоизоляция следующих помещений: гостиная, душевая, ванная комната, спальня, гостевая спальня, гардеробная, лоджия.
Здесь использовалась система установки шумоизоляции “ коробка в коробке”.
В остальных помещениях выполнена частичная шумоизоляция. При этом полностью шумоизолирован пол. На потолке наклеена только мембрана. А обшивка перегородок менее шумоизоляционная, чем использована в полностью шумизолированных помещениях.
В помещениях где сделана полная шумоизоляция уровень шума уменьшен на 60 дБ, так заявляет производитель шумоизоляции.
На графике видно на какую величину снижается шум в зависимости от частоты звука.
На диаграмме видно сколько дБ шума разносится от разных источников.
Сколько стоили звукоизоляционные материалы и работы?
В этап звукоизоляции входили работы:
1) По монтажу звукоизоляции потолка
- наклейка резиновой мембраны с войлоком
- монтаж каркаса на виброподвесах
- закладка пустого пространства звукоизоляционной ватой, в том числе в сами профили
- зашивка двумя слоями ГВЛ с наклейкой резиновой мембраны между ними
2) По устройству звукоизоляции пола
- укладка первого слоя звукоизоляционного одеяла на пол
- укладка резиновой мембраны
- укладка второго слоя звукоизоляционного одеяла с заходом на стены
3) По заливке стяжки пола
- устройство опалубки для разделения помещений
- установка струнных маяков( т.к. звукоизоляционное одеяло мягкое и оно сжимается, обычные маяки могут искривиться и получится не ровная плоскость)
- заливка стяжки
- подрезка звукоизоляционного одеяла и заделка шва звукоизоляционным герметиком
4) По звукоизоляционной обшивке стен
- наклейка резиновой мембраны с войлоком
- монтаж каркаса на виброподвесах
- закладка пустого пространства звукоизоляционной ватой, в том числе в сами профили
- обшивка каркаса листами акустик гипс М1 и звукоизоляционным гипсокартоном
5) По возведению звукоизоляционных перегородок
- установка каркасов перегородок с устройством звукоизоляционных подрозетников
- зашивка звукоизоляционными листами с укладкой ваты внутрь каркаса
Все работы по звукоизоляции вышли на 3 900 000 рублей.
На материалы было потрачено порядка 4 650 000 рублей.
Итого стоимость шумоизоляции на данном объекте составила около 8 600 000 руб.
Да сумма получилась не маленькая. Но за комфорт нужно платить.
А за какой комфорт готовы заплатить Вы ?
Как быть с вытяжкой?
Живу в двухэтажном доме с газовой колонкой и плитой. Недавно приходили газовщики, проверяют вытяжку, а она совершенно не тянет. Сказали срочно вызывать Управляющую Компанию, иначе имеем право отключить газ. Когда они ушли, я засунула руку с телефоном в вытяжку и сделала фото вверх со вспышкой.
Наша УК маленькая, пара слесарей, мастер да бухгалтер с начальником. Крыша у нас очень покатая, сами мужики не полезли, звать из других организаций не стали (видимо, им бы пришлось за это платить?). Решили действовать с чердака. Пробили дыру в стенке вентиляции и давай один кидать гирьку на цепочке, а второй у меня в квартире руку по локоть вверх в вентканал засунул и железной линейкой ковыряет... Полчаса наверное это продолжалось, а в итоге удалось с пригоршню битых кирпичей, листьев и земли выгрести всего-то. Как сказал верхний - гирька долетала где-то до середины стены второго этажа. Примерно вот так я это представляю
Ну и они ушли, сказав - " а вы больше не пускайте к себе газовщиков". Соседка сверху, ехидно улыбаясь, сказала: "Придется тебе стену долбить". Я говорю: "Наташ, вообще-то стену долбить надо У ТЕБЯ". Она сразу сникла, когда поняла и естественно ответила " ещё чего!" и слиняла к себе. А меня волнует этот засор, потому что я собираюсь переехать жить в другой город, а в этой квартире будет жить мой сын. И если я всегда держу окно на микропроветривании, то он даже летом окна не открывает, всегда ему холодно. Давно ли этот засор, не могу сказать, года два газовая компания проверки проводила на "отвали", в этом году я заключила договор с новой. И ещё помню, что пару лет назад у нас ремонтировали крышу, может, те строители похулиганили(((. Узнала недавно про альпийскую форточку, скажите, поможет ли она? Что скажут газовщики, ведь через год опять проверка?
Затопление "бракованный кран отопления"
Немного предыстории. Дом после капитального ремонта заменены стояки отопления установлены краны на батареях. Заменены стояки ХВС ГВС на полипропилен.
Поступает заявка топит квартиру. Руки в ноги и полетели. Приезжаю.
И да бракованный балансировочный кран sti. Вырывает шток крана. Уже не первый раз подобное третье затопление на этом доме после капитального ремонта.
Сразу объясню для особо умных. Система в доме открытого типа давление в теплотрассе 4 кг. То Есть от действий местного сантехника или его бездействия давление вырасти не могло ибо система открытого типа "насос смешения".
Итог капитальщики попали.
Ук предложила менять всём краны.
Кухня и ремонт
Доброго времени суток, уважаемые знатоки!
После завершения отделки кухни, встал вопрос о покупке самой кухни.
Посмотрев весь Ютуб и интернет, понял что это довольно кропотливое занятие.
Если среди Вас те, кто недавно покупал себе кухню на кухню?)
Подскажите на что Вы больше всего обращали внимание?
На чем можно сэкономить, а на чем не стоит ?
Может кто посоветует хорошую контору, от которой остались довольны
Буду признателен за все советы!
Может не только мне поможете, всем спасибо!
Дверь
Напишу про дверь, точнее про этапы развития входной двери от гусеницы до бабочки на этапе ремонта с черновой отделки ))
Этап первый "Гусеница и линька".
Изначально всё выглядело и было вот так, данный экземпляр от застройщика был демонтирован и удачно продан на авито по бросовой стоимости
После долгих мытарств по магазинам выбрали, вроде то что понравилось и было приемлемо по стоимости и финансовым возможностям. Доставка монтаж руками фирмы.
Этап второй " Окукливание"
Дабы защитить дверь на время ремонта от механических повреждений, съездил купил лист двп, вырезал под размер , приклеил на скотч . Скотч она же липкая лента была Теса , производитель заявлял , что очень клейкая , но местами все равно отклеилась со временем.
Дальше была возня с выравниванием откосов, возможно кто то спросит зачем , так захотелось ,ремонт делал в основном сам и хотелось, аккуратности а не торчащих кирпичей ,да и чтоб стены можно было нормально зашпаклевать. Из соображений звукоизоляции , а может глупости выцарапал монтажную пену и залил раствором цемента (жаль что не подумал сразу об этом и не сделал демпфер по контору двери). На этом моенте теплоизоляция меня не интересует , подъез теплый. После демонтажа всего лишнего и заноса всего нужного ДСП снял.
Здесь уже подровнял откосы ,стены и из любопытства накинул на откос плитку пвх(которую заепался клеить, но это другое, история про дверь ), как будет смотреться если делать откос одним цветом с полом))
Справа ребёнок помогал раскрасить серые будни )))
Окуклилась соседняя дверушка в техническое помещение (кладовку)
Куколка продолжает развиваться, наклеены и покрашены обои, установлен шкаф , розеточки. От косы также покрасил исключительно для красоты, осталась краска с пробных выкрасов.
Наконец то дождались монтажника , к слову два месяца почти. Приехал поставить две межкомнатных и собственно облагородить вход. Столько инструментов как у "дверника " я ещё ни у кого не видел )))
И так всё сделано , вроде и хорошо и красиво ( почти красиво ),Казалось бы выпускайте бабочку, но нет. Цвет то у стен серый, а панель у двери светлая, как то не гармонирует совсем.
мастер "Дверник" посоветовал , что у них на производстве делают накладки на двери с любой фактурой и цветом. А что , хороший вариант, но .
Но, осталась краска и мысль , а почему бы не попробовать покрасить, если что то пойдет не так , то спрячется под панель. Пробовал искать инфу о подобной покраске или чьем то опыте, но ничего не нашёл, а в фирме где планировалось заказывать панель, на этот вопрос сказали краска это недолгая и бессмысленная затея.
Заимствуем у ребёнка акварельную кисточку и погнали )))
Этап три " Бабочка"
Ну что-ж , панель прокрашена на два раза , металл также , порог снизу для защиты покрыл лаком.
И возможно кому то станет интересно имело ли смысл красить.
Последнее фото, эксплуатация чуть больше года. Краска очень хорошо себя показала и от накладки на панель решено отказаться
Если кто то дочитал , всем спасибо , дверь моя , тег моё
(49,)5 плюсов каркасного дома
Без долгих вступлений расскажу, почему стоит обратить внимание на каркас.
1. Скорость строительства.
Дом в 100 м2 можно построить за 2 месяца. Еще месяц уйдет на разводку коммуникаций и чистовой ремонт. Итог: через 3-4 месяца в доме можно жить. В сравнении с квартирой, часто покупаемой на этапе котлована, или строительством каменного дома – скорости космические.
2. Каркасник – теплый.
Не буду пугать понятиями энергоэффективности и расчётом коэффициента сопротивления теплопередаче ограждающих конструкций. Скажу лишь, что отопить каркасный дом гораздо проще, чем каменный той же площади. Сохраняет тепло каркас тоже дольше, что не удивительно - он почти полностью состоит из утеплителя. Все это значит, что счета за отопления будут гораздо приятнее.
3. Можно строить зимой
Каркасная технология практически не предусматривает влажных работ. Температура окружающей среды никак не влияет на качество строительства. Дерево сколачивается гвоздями и зимой, и летом одинаково хорошо. Приятный бонус в стройке зимой – более дешевые материалы, так как спрос ниже из-за предрассудков.
4. Легкий дом
Каркасник не требует глубокого залегания фундамента. Для него достаточно минимальной ленты, плоской плиты или даже свай. Часто, каркасный дом не требует и использования спецтехники, все можно принести и установить вручную. В труднодоступных для техники местах – каркасный дом единственный выбор.
5. Дешевле квартиры и каменного дома
Для некоторых этот пункт будет на первом месте. Цена одного квадратного метра одноэтажного каркасного дома на сегодня – от 50 тысяч рублей. Для сравнения, в квартире, в не самом крупном городе северо-запада, - от 70 тысяч.
Выводы по этим фактам каждый сделает свои, а выбрать планировку будущего дома поможет О'Каркас

































