Сообщество - Строительство и ремонт

Строительство и ремонт

10 714 постов 48 336 подписчиков

Популярные теги в сообществе:

15

Есть время разбрасывать камни и время их укладывать

У меня под окном наступило такое время. Середина января - это пора укладывать новую брусчатку. В 2020 году меняли трубы (из-за больших потерь тепла, батареи были всю зиму чуть теплые), и разобрали старую дорожку.

Наконец нашлась возможность восстановить брусчатку. Вишенкой на торте является то, что трубы с горячей водой по-прежнему проходят под дорожкой, и, следовательно, влажность покрытия равномерной быть не может.

Показать полностью 3
19

Ремонт в квартире

Всем привет! Затеваю капитальный ремонт в квартире, с перепланировкой. И меня терзают сомнения, по поводу выбора материалов для строительства стен в ванной комнате (старые решено сносить). Дело в том, что на одну из стен будут вешаться кухонные шкафы. Может кто подскажет, из чего лучше эти стены строить? Ремонт делать будем сами и в первый раз.

20

Помогите с вентиляцией ванны через туалет

Всем привет! Тема старая, но почему-то в инетах до сих пор нет однозначного решения.

Требуется правильно организовать вентиляцию в ванной и туалете при условии, что отверстие в вент шахту находится только в туалете, а для вентиляции ванной предусмотрен проем (см. рисунок). Важные уточнения для моего случая: квартира на предпоследнем этаже новостройки, то есть тяга вентиляции слабая, планирую ставить вентиляторы. Потолки в ванной и туалете будут натяжные.

Помогите выбрать один из двух вариантов или предложите свой:

1. Пробить отверстие в вент шахту со стороны ванной и поставить накладные вентиляторы с обеих сторон. Чтобы не гонять воздух туда-сюда от вентиляторов под углом 90 гр. отвести короб вверх в шахту. Вентиляторы будут работать независимо если не будет перетока воздуха, или синхронно если будет.

2. Из ванной за натяжным потолком провести через существующий проём в туалет вентиляционный канал и соединить его с тройником пред вент. шахтой. После тройника установить канальный вентилятор который будет одновременной вытягивать воздух и из ванной и туалета (через анемостаты в потолках ванной и туалета)

Помогите с вентиляцией ванны через туалет
Показать полностью 1
32

Перепланировка квартиры

Всем привет!

Хочу пообщаться на тему допустимого минимализма.

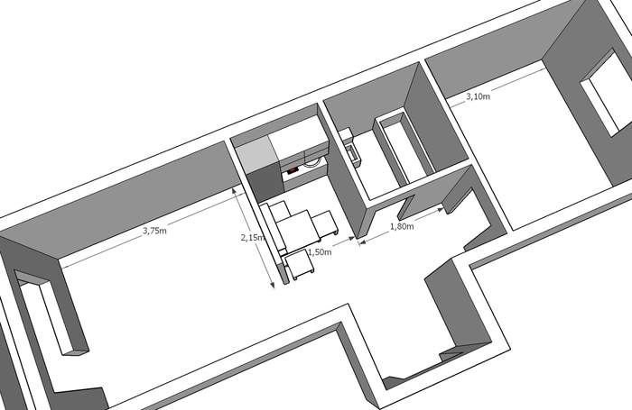
Имеется однокомнатная квартира данного вида:

Помещение на первом плане с левой стороны кухня, площадью около 8 квадратных метров. Дальше идет стандартная раздельная сантехкабина, коридор и входная дверь. Единственная комната №1 имеет площадь 16 квадратных метров, есть лоджия. Общая площадь 34 квадратных метра.

Хочется изменить планировку, сделать из кухни еще одну комнату (комната №2). Квартира расположена на первом этаже, переносить мокрую зону можно. Совмещаем санузел, за счет чего увеличиваем площадь комнаты №2 (бывшей кухни). Полностью демонтируем старую сантехкабину из гипсолита и бетонный поддон. Ставим новый каркас из металлопрофиля и гипсокартона или из газобетонных перегородочных блоков. Места внутри санузла достаточно, если заменить ванну на душевую кабину, то можно разместить стиральную машину.


По моему субъективному мнению, много площади для места, где готовиться еда не нужно. Такой минимализм далеко не всем покажется удобным, но пока в планах я вижу такую кухню. Еще не определился, нужно полностью отсекать эту зону от комнаты №1 или достаточно будет частичной перегородки (возможно пропускающей свет). Небольшой стол можно сделать складным, как и стулья. Сейчас много вариантов подобной мебели.

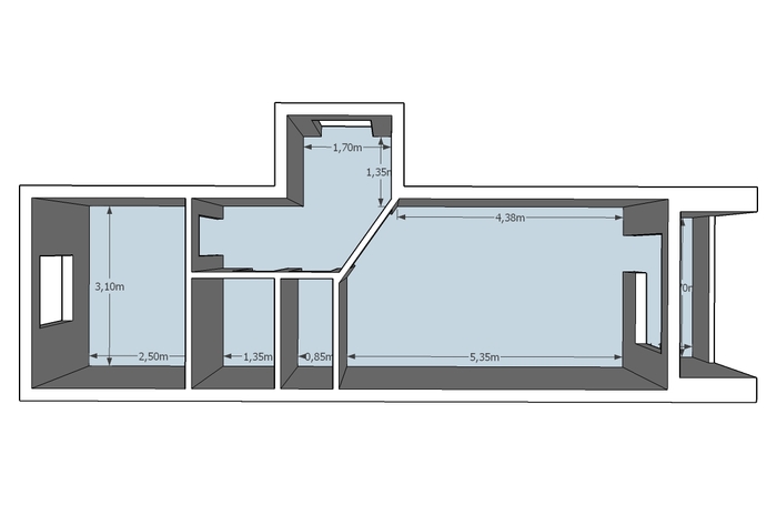
На плане в ширину зоны готовки 1,5 метра я разместил стандартный холодильник (серый), маленькую варочную панель и мойку. Сушилка для посуды планируется над мойкой. Шкафов для хранения, если не складировать все бабушкины чугунные сковородки и эмалированные кастрюли достаточно. Хотя тут можно долго спросить по поводу размещения различной кухонной техники, но это все очень индивидуально.


Стол и 3 стула, большое торжество тут не отметить. Над столом можно разместить открытые полки, место для того, что часто используется. Со стороны холодильника лучше посадить ребенка, что бы самому лишний раз за майонезом или кетчупом не вставать.

Над планировкой в комнатах еще не думал, можете подсказать как лучше. Задумывался только об утеплении лоджии и совмещении с комнатой №1. Проблема в холодной сибирской зиме.


Семья у нас 3 человека.


Есть сторонники такого подхода, может кто-то живет в подобных условиях? Пожалуйста, поделитесь своими мыслями.


Корректировка:

Совмещение лоджии и комнаты №1. Перегородка между кухней и комнатой №1 из светопропускающего материала, кухня увеличена. Дверь раздвижная.

Показать полностью 9

Сартир в деревянном доме

Всем привет . Первый раз тут . Нужен совет . В сети ничего не нашёл . Строители ставят инсталляцию в сруб , но я чувствую , что не правильно ?! Сруб стоит меньше года , еще будет садится , и утащит толчек за собой . Кто подскажет как грамотно его установить ?

Всем привет . Первый раз тут . Нужен совет . В сети ничего не нашёл . Строители ставят инсталляцию в сруб , но я чувствую , что не правильно ?! Сруб стоит меньше года , еще будет садится , и утащит толчек за собой . Кто подскажет как грамотно его установить ?

Показать полностью 2
42

100 самых опасных каркасных узлов! Не повторять!

100 самых опасных узлов в каркасных домах, которые мне прислали за 2021

В видео с объяснениями, здесь сами картинки:

Показать полностью 24
111

Укрывочная пленка для ремонта с малярным скотчем (2 в 1)

Предыдущие посты:

Скотч с пупырышками (скотч для проводящих валов)

Скотч напольный противоскользящий

Защитная пленка для салона автомобиля

Желаете поддержать нашу деятельность? Подпишитесь на наш канал в ютубе: https://www.youtube.com/channel/UCbgJbHjlV06NDTfq0tzfNpg 

Если у вас есть предложения или пожелания по поводу постов или видеороликов, пожалуйста пишите о них в комментариях.

Здравствуйте граждане. Думаю, многие из сообщества "Строительство и ремонт" знакомы с подобными материалами, используют их в работе (Теза или аналог). От вас, граждане, я бы хотел получить обратную связь, ваше профессиональное мнение. Возможно вы сравнивали с конкурентами или имели негативный опыт. Ваши комментарии я читаю и довожу до коллег из компании производителя. Сам же пост написан для людей, которые с подобными материалами еще не сталкивались. Возможно пост окажется полезным, а возможно и нет.


Итак:

У компании Теза есть специальный отдел "Консьюм", который занимается распространением товаров для обычных потребителей (т.е. для нас с вами), а не для различных предприятий и заводов. Реализуется все это добро через строительные гипермаркеты.  Там есть много интересных вещей. Некоторые потом перекочёвывают в отдел "GIM", т.е. общеиндустриальный, к дистрибьюторам вроде меня.


И вот есть у Тезы одна замечательная вещь для строительных и малярных работ, называется она Tesa Easy Cover 4368. Это не просто малярная лента для защиты поверхности. Производитель совместил малярку с укрывочной плёнкой, закрутил в рол для удобства нанесения и запаковал. Выглядит это добро вот так:

Плёнка выполнена из высокоплотного полиэтилена, устойчивого к слабому физическому воздействию. Толщина составляет 10 микрон. Плёнка препятствует стеканию краски. Намотка в таких рулонах всегда одинаковая - 33 метра, а вот ширина полотна бывает разная: 0,55м, 1,1м, 1,4м, 1,8м и 2,6м. Стоковыми в России являются первые два вида (0,55. и 1,1м).

На верхний край пленки нанесена малярная лента из слабокрепованой бумаги, один из самых распространённых материалов для малярок, бледно-кремового цвета. Из-за этого у ленты малое удлинение на разрыв, всего 10% при воздействии в 38 Н/см. Ширина рулона, как мне кажется, не более 30 мм. Из себя эта лента представляет стандартное решение для малярных работ. Производитель умышленно не закладывает сверх прочные варианты, ибо нецелесообразно.


Клей применили каучуковый, натуральный, опять таки это стандартное решение. Клея достаточно, чтобы работать на пористых поверхностях. Однако, ждать сверх выдающихся результатов не стоит. Для этого есть совершенно иные ленты. Адгезия к стали составляет порядка 3.4 Н/см. Общая толщина скотча составляет добрых 140 микрон.

Система стойкая к воздействию ультрафиолету в течении 1 недели. Это немного, но мы должны учесть, что клей каучуковый. Под ультрафиолетом, если передержать, он расплавится и въестся в поры и микронеровности поверхности. Поэтому к срокам нужно относиться со всей серьезностью.


По стоимости сориентирую по стоковому рулону 1100мм х 33м = 565 р. с НДС по прайсу и актуальному курсу Евро. Варианты рулонов для строймагов я, увы, не знаю.


На этом наши полномочия фсё!

Появились вопросы? Задавайте их в комментариях. Мы с @MikhailTesa, ответим на них в меру наших компетенций.

Показать полностью 3 2
Отличная работа, все прочитано!