Сообщество - Строительство и ремонт

Строительство и ремонт

10 710 постов 48 328 подписчиков

Популярные теги в сообществе:

2

Пикабушники в касках или "ухх полыхает")))

Буквально утром, поделился тем, что на объекте дегенераты строители сделали розетки не на высоте 135мм как было и указано и сказано несколько раз. А на высоте 135СМ(!!!) чуете разницу да?

И вот тут я выяснил что очень и очень много на ресурсе касочников) как выяснил? Да собственно по дохуя умным и чисто строяковским комментариям и минусам) которых 50-70 точное колличество считать лень.

То что у строителей часто "не правильный чертёж", "не корректное ТЗ" и "дизайнер просто рисует, а нам делать" это всё аналоги "я тупой и руки из жопы" так же давно известно.

Но лично мне прям весело от того как строяковские жопы горят) вот только взять высоту в сантиметрах вместо миллиметров всё равно может только идиот, как бы граждан не бомбило.

19

Фундамент свайно-ростверковый и подвал под домом

Подвал под свайно-ростверковым фундаментом, это легко и удобно.

1. Подвал это хорошо. Подвал тебе нужен. СР фундамент даст тебе подвал.

2. Нужно отступить от сваи минимум 90 см. Свая держится за грунт вокруг сильнее чем опирается на свою пятку.

3. То расстояние что отступил от сваи залей как полку, бетоном по грунту (не забудь армировать сеткой). Получишь подвал шире, больше и удобнее. Полка получится сухая и на уровне груди. Сборными полками поднимешься до уровня перекрытия.

4. Копай подвал до того как перекрылся. Потом будет тяжело.

5. Гидроизолируй яму в 2 слоя. Это хорошо и не дорого.

6. Гидроизолируй яму после заведения через неё коммуникаций в дом (например Канализации). Потом гидроизоляция будет дороже. И если ты ее проколешь она уже не будет работать ( проверил -поправить не смог, и ты не сможешь).

7. Копай в рост, +30 см. Потом песок потом гидроизоляция и бетонный пол. Можно залить стенки бетоном, но я поднял в половину кирпича.

8. Хочешь легко убирать воду- сделай приямок под насос.

9. Коммуникации в подполе всегда доступны и легко обслуживаемы, это хорошо.

10. Добавил разрез подвала.

Фундамент свайно-ростверковый и подвал под домом
Показать полностью 1
219

Промерзает угол-правильно утепляй1

Промерзает угол армопояса. Даже 3 угла. Отопление в доме ещё не запущенно. Делаю отделочные. Хочу рассказать об опыте, сыне трудных ошибок.

1. Утепляй сразу. Утепляй сам, или проверяй и проси доделать, или проси проверить и доделать, и потом проси доделать когда проверишь сам. Нудно? Не порядочно? Да! Но тепло.

2. Нет денег на утепление- найди! Совсем нет денег-утепли углы. Есть деньги утепляй все и доутепли углы!!!

3. Не закрывай отделкой пока не утеплишь! У тебя нет денег на отделку-они на утепление.

4. Когда думаешь о материале стен-думай о теплопотерях способах отопления и отопительных приборах. Считай с запасом. +10 минимум. На вентиляцию +30%. После этого ты выберешь материал стен.

5. Газоблок -хорошо! Армопояс -плохо. Без армопояса тяжело сделать конструктив из газоблока. Армопояс сделать тяжело - но он нужен. Утепляй армопояс снаружи.

6. Хорошо утепляй армопояс снаружи.

7. Думай как утеплить армопояс сверху. Это проблема.

8. Не утепляй меньше-утепляй больше. Косяки на объёмах уменьшат толщину утепления до нормы ((. Как говорит мой сосед, Дядя Коля, делай хорошо х%#ово само получиться.

9. Не Гунди, что утеплять много и дорого. Лучше меньше (дом), да больше (утепление).

10. Недостаток утепления (или утепление с нарушением технологии) это не только не комфортная температура, перерасход на эксплуатацию, на систему отопления (она не дешевая, как и вся инжинерка), это ещё плесень и сырость и, зачастую, гибель отделки.

Все ИМХО, из опыта самостроя.

Показать полностью 3

Работящие, дешёвые но тупые...

По работе на одном из проектов столкнулся с работой гостей из солнечного какого-то ....стана

Что у них было? Проект. По мимо проекта было уточнение что размер указан в миллиметрах от ЧИСТОВОГО(это важно) пола, в устной форме.

Сказали "Таа, ми понимай, тааа всё харасë будет"

Харасë :

Слов нет одни эмоции.

P. S дятлы эти НЕ наши, заказчик сказал и выбрал принципиально исполнителей САМ. Судя по их работе выбрал по цене в сегменте "Жлоб"

Показать полностью 2
20

Загадка №3. Енот, Белка и 6 грузов

Загадка: Имеются 6 грузов висящих на веревках. Силу Р постоянно увеличивали и все веревки порвались.

Вопрос: В каком порядке порвались веревки?

Загадка №3. Енот, Белка и 6 грузов

Ответ через 3-4дня.

3808

Небольшое преображение гаража

Решил рассказать о преображении гаража. Осторожно, много фото и текста.

Живу в человейнике, где люди паркуются в притирку, пару раз, приехав с работы, искал место полтора часа - все занято в пределах километра, включая платные парковки. Стало очевидно, что надо как-то решать вопрос. Несколько лет накоплений и командировок = готовность к покупке.
Пропущу поиск и общение с продавщицей, которая почти год оформляла документы и пару раз почти передумала, ибо результат - покупка гаража на -2 этаже ГСК. Есть ещё -3 этаж, но в другой части, потому под этим гаражом никого нет. ЖБ плита перекрытия
и дальше земля

Ворота - сталь 3 или 4 мм подржавевшая местами - болтаются как лист бумаги, форму не держат. Пол кривой с перепадом в 3 см, стены и потолок в копоти от давно сгоревшей машины из гаража напротив, проводка из алюминия и медной лапши. В общем просто ужас, но лучший вариант за свои деньги, да и все поправимо.
Первым делом привёл в нормальный вид ворота. Тут фото процесса не осталось. Купил трубу 20х40, прикрутил кровельными саморезами к воротам изнутри, приварил каждые 20-25 см по 5 см шва. Сделал ригели сверху и снизу, слегка пошкурил, обработал преобразователем ржавчины и покрасил чёрной грунт-эмалью в два слоя. Ворота приобрели жёсткость и стали выглядеть воротами.
Начал штукатурить стены цементной штукатурка по маякам. Воды в доступе нет, все приносил в пятилитровках

Потом цементная шпатлевка и водоэмульсионка. Потолок местами подмазал, пошкурил от копоти и покрасил белой водоэмульсионкой в несколько слоев до однородного цвета.

Тут я понял, что переборщил с колером и второй слой красил более светлым. Результатом доволен

Параллельно с этим переделал проводку. Положил открытым способом в гофре по потолку многожильным проводом. Да, по-хорошему надо одножильным делать, но сеть малонагруженная, на входе автомат на 16А, так что проблем не вижу. Полностью заменил проводку на медную, 2.5 кв.мм на розетки и 0.5 на свет, соединения на скрутках с пропаиванием.
Повторяем процесс с торцевой и второй стеной. Стеллаж из досок разобран и отправлен позже на дрова

Настало время исправлять пол. ЦПС стяжку можно делать от 3 см, много смеси уйдет в никуда и пол поднимется сильней, но потому как большой нагрузки не будет - решил выравнивать клеем для кераммогранита. Это немного дороже, но удобнее. Делал по маякам, армирование сеткой из 3 мм арматуры. Минимальный слой сантиметр.

Следом укладка кераммогранита на тот же клей

Пора решать вопрос с размещением вещей. Сварка есть, значит металлический каркас и полки из фанеры. Я сварщик-самоучка, потому варить тонкостенную трубу электродами было тяжело, но кое-как справился. Покраска серой грунт-эмалью, полки фанера 8 мм, покрыта лаком.

Вещи переезжают на новый стеллаж, сборные стеллажи покидают гараж

Повторяем на второй половине - маяки, выравнивание, укладка кераммогранита.

Ремонт сделан не идеально, но своими руками. Спасибо за помощь папе и брату - они часто участвовали в работах. В общей сложности это заняло 8 месяцев по 1 выходному с перерывами по обстоятельствам. Конечным результатом я остался доволен. Кто-то из знакомых сказал, что слишком чисто получилрсь, мол "не гараж, а офис" - спорное утверждение. Фото до и после для сравнения.

Потом в глубине добавился небольшой верстак и полка, а так все и осталось.
Прошу тапками не кидаться за первый пост и надеюсь, что было интересно

Показать полностью 23
23

Вопрос по строительству беседки1

Всем привет. Задумал строить беседку 3*4 м. В качестве фундамента думал залить столбики диаметром 200 мм в глубину 60 см. Каркас беседки думал сделать из бруса 100*100. Крыша четырехскатная, мягкая кровля. Теперь собственно вопросы, может с брусом не заморачиваться, а взять доску 50 мм? Хотя брус вроде можно взять клееный или это излишество. И второй вопрос это делать самому или заказать готовую, за неё вроде 130-150к просили в прошлом году. Из инструментов есть только дрель, шурик и лобзик. Даже циркулярки нет, её по-любому придётся купить. И также волнует отсутствие опыта, особенно с крышей, и отсутствие времени. Потеплеет в лучшем случае в конце марта, а сидеть в беседке хочется уже на майские.

19

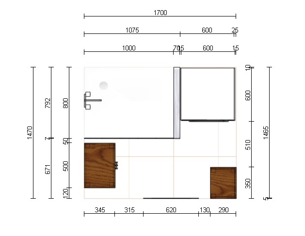
Советы по ремонту ванной комнаты

Ух, пришло время. Сошлось все. И трубы начали капать, и сифон под ванной, машинка стиральная завыла, что сатанинский волк. В общем, хотим ремонт и я ищу помощи, советов.
Имеется ванная 1700*1470мм, высота комнаты 2350 мм. Сейчас стоит обычная ванна по длиной стороне на против входа, слева от входа вместо раковины стоит стиралка, справа корзина для белья.
Хотим стиралку и сушильную машину в колонну. Чтобы вместить колонну, вместо ванной думаем душевой уголок поставить, возведя стенку тонкую, ну и раковина все же нужна.
Я в pro100, накидал хотелки. Хотелось бы услышать и критику, и предложения.
вариант объединения с туалетом не рассматриваем. Бюджет - чем меньше тем лучше)) стиралка + сушка уже в сотку встанут, так что...пытаемся ужаться. Например в части покрытия стен думаем кафель только в душевом уголке сделать, а остальное покраска. Или же все идеально ))
Пост не ради рейтинга, я комментдля минусов прикрепляю ниже.
p.s. Друзья, ниже на рисунке, схема, что я хотел бы воплотить, не текущее размещение. Сейчас вдоль длиной стены напротив входа ванна, а стиралка слева от входа.

Показать полностью 2
Отличная работа, все прочитано!