
Строительство и ремонт
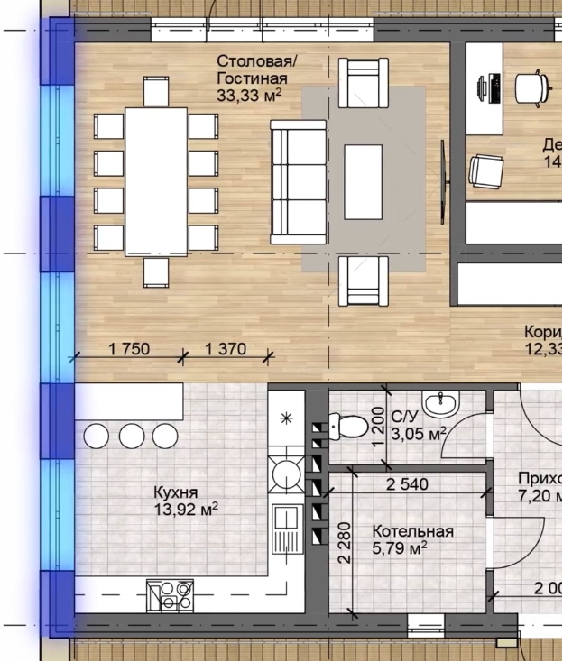
Планировка дома1
Здравствуйте! Посоветуйте, пожалуйста, владельцы частных домов. Планируем построить каркасник на семью из 4 человек(2взрослых и 2 ребёнка). Сейчас набрасываю планировку для проекта.. В площади ограничены, фундамент уже залит(раньше была другая планировка, но изменились обстоятельства). Что думаете насчёт такой планировки, удобна ли?
П. С.
Этаж один, второе фото- просто подписаны комнаты)
Таблица для расчета стоимости штукатурки
Всем привет!
Сделал таблицу в экселе, которая поможет быстро рассчитать стоимость работ и количество материала для производства штукатурных работ. С помощью таблицы сможете проверить сколько уйдет материалов на Ваш объем работ. Таблица очень простая:
Вводим исходные данные и получаем результат. Ниже, в таблице, есть список сопутствующих материалов, он заполняется вручную, исходя из потребности.
PS: Надеюсь, что табличка поможет Вам) Всех с наступившими выходными.
UPD: v.0.1 Добавил вычитание дверей и окон
UPD: v.0.2. Несколько скорректировал формулы и добавил описание грунтовки
Каким материалом отделать пол в доме?
Нужен совет. Имеется дом в 100 кв.метров, теплые полы по всему контуру. И вот стою перед дилеммой, что же положить на пол. По сути только два варианта - ламинат или керамогранит. Много читал отзывов и многие пишут, ламинат не подходит для теплого пола. Что он плохо пропускает тепло, может высохнуть или потерять форму, начинает скрипеть. Цены на материалы одинаковые, класть буду сам. Может есть тут люди, которые имеют опыт работы с обоими материалами? Подскажите, какие для вас есть плюсы и минусы каждого материала?
Как мы экономим деньги собственнику?
Еще больше интересного и полезного контента про стройку, технадзор и приемку недвижимости Вы можете посмотреть на моем канале
Утепление балкона. Подскажите физику процесса, пожалуйста, и как быть)
Добрый день, уважаемые мастера.
Решили с мужем утеплить балкон, дабы в холода там можно было поделать всякое грязное - покрасить, попилить немножко и не мерзнуть при этом. Утеплять планируем пеноплексом с обрешеткой из брусков, потом пеноизол и обшивка фанерой.
Дом П44т, балкон "сапожок", вот примерно такой:
Первым делом поменяли окно (еще год назад)), потому что изначально там стояло такое раздвижное тонкое. Отмеченные красным решили не менять по двум причинам:
там все равно будет шкаф или полки, подумали там сделать такие типа 2 каркасные стенки из бруска с утеплителем, привязав их к полу и потолку, отступив несколько см от стены и окна, стекла закрасить белой краской, а зазор этот что б проветривалось)) читала, что нельзя на стекло лепить утеплитель, может лопнуть
левое стекло поменять в принципе нельзя, не побеспокоив соседей - оно уходит к ним на балкон (дальше на фото будет видно)
Ну и вот, поставили мы окно, решили перед напиливанием досок-брусков замазать все щели в бетоне - потому что местами там было видно улицу, через них текло и на этом балконе температура была точно такая же как на улице. Замазали все бетонами, цементами, гидропломбами, полиуретановыми герметиками, чем только не пробовали! Стало ощутимо теплее) Потом муж слегка психанул и залил все оставшиеся щели пеной (будь она неладна).
И случился непонятный мне момент - вот эти 2 окна, которые остались холодными, стали потеть и замерзать. Объясните, пожалуйста, почему так произошло? Я в теории понимаю что там что-то про точку росы, которая сместилась, когда убрали сплошной сквозняк, но не понимаю, почему именно там? Почему на стекле, которое к соседу - больше, чем на том, что под углом и почему на других окнах этого нет? И, собственно, что теперь с этим делать?) пену со стекла к соседу думаем убрать, что б немного проветривалось (у соседа балкон "лодочка" и не утеплен, за нашей стеной у него во всю стену шкаф с закатками). Или когда мы стенки там сделаем - перестанет потеть и все будет норм?
Спасибо!
Сначала смеялись. Потом узнали себя. Задумались
Иногда реальность смешнее вымысла. А иногда страшнее. Создали серию комиксов, в которых каждый узнает себя.
5 признаков хорошей планировки дома
Поговорим о том, как отличить плохую планировку от хорошей.
Это очень хороший вопрос. Многие из вас, наверняка бороздили просторы интернета и поражались многообразию выбора различных планировок. Есть планировки одноэтажных, двухэтажных домов и так далее, но сегодня мы будем говорить о том, как буквально с первых минут, определить чем одна планировка лучше другой.
Этот алгоритм можно использовать для того, чтобы выявить наиболее подходящий и наиболее рациональный вариант, который подойдет для решения тех или иных сценариев использования дома.
Главное, что вам надо помнить, планировка должна быть максимально продумана и рациональна. Именно планировка решает будет ли дом удобным для Вас, или нет. Фасады в этом смысле уже вторичны. Также нужно понимать, что красивые планировки не всегда являются комфортными и рациональными.
1. Хорошая планировка должна быть функциональна.
Это значит, что глядя на планировку вы должны сразу понимать как Вы будете вести себя в этом пространстве. Рекомендуется распечатать те планировки которые Вам пришлись по душе. Затем разными цветами рисовать, как Вы будете перемещаться по будущему дому, в тех или иных жизненных ситуациях. А жизненные ситуации можно прописать отдельным списком. Вот несколько примеров таких сценариев:
предположим Вы приехали уставшие с работы домой, что вы будете делать первым? Где Вы помоете руки, куда вы сходите в туалет, где вы скинете или повесите верхнюю одежду? Далее: куда вы пойдете перекусить, как вы проведете свой вечерний досуг, как вы попадете в спальню, где вы разденетесь, где вы займетесь гигиеной и так далее.
Пример к первому сценарию
к вам приехали гости. Где эти гости разденутся, где они сходят в туалет? Далее, где они будут проводить с вами время? Если они голодные, как и где вы их чем-то угостите?
Пример ко второму сценарию
ещё вариант, вы приехали с семьей из гипермаркета у вас много сумок, где Вы это все поставите пока будете открывать входную дверь, где вы это поставите когда будете раздеваться и снимать обувь? Далее, куда это все будет перенесено, какая-то кладовая, холодильник и так далее.
Пример к третьему сценарию
Сценарии у каждого свои и важно уделить время тому, чтобы заранее их предусмотреть. Это невероятно простая вещь, но в то же время крайне полезная, которая сразу покажет, подходит именно Вам такой дом или нет.
Если у Вас нет опыта загородной жизни и продумать все заранее проблематично, рассмотрите вариант аренды загородного дома (а лучше нескольких) на какое-то время. Это поможет лучше понять какие сценарии для Вас в приоритете, а какие нет.
2. Меблировка расстановка мебели на плане
Существует много планов в интернете где мебель не показана. Есть стены, есть какие-то размеры, есть даже название помещения и площадь. Как мы будем использовать помещение, куда мы сядем, повесим вещи, где мы будем спать, какого размера кровать, какие проходы и так далее. Если все это не учтено планировкой заранее, вы замучаетесь потом подбирать мебель и рискуете создать полосу препятствий вместо нормального, удобного для использования, помещения. Поэтому при первоначальном выборе планировки мебель на эскизе обязательно должна быть.
3. Конструктивная целостность вашего дома
К сожалению, определить конструктивную целостность и рациональность принятых решений это немного сложнее, чем просто проанализировать функциональное использование планировки и посмотреть наличие мебели.
Дело в том, что на плане должна быть учтена иерархия стен. То есть, когда вы смотрите на планировку и видите все стены одинаковой толщины, это серьезный повод задуматься о корректности такого плана. Исключением здесь могут быть деревянные каркасные и брусовые дома. В каменных же домах должна быть иерархия стен, то есть перегородки, внутренние несущие стены и наружные несущие стены должны отличаться по толщине. Очевидно, что наружные несущие стены будут самыми толстыми, потому что там есть конструкционная часть, теплоизоляция и отделка фасадов. Внутренние несущие стены будут немного тоньше и перегородки будут самыми тонкими.
Следующее условие, влияющее на конструктив дома, это расстояние между стенами. Желательно чтобы оно было не больше 6 метров, потому что это удорожает всю конструкцию вашего дома, в том числе и фундамент, ведь толщина и вес перекрытий в этом случае возрастают.
Если выбираете двухэтажный дом, обращайте внимание на лестницу. Лестница не может стоять в любом удобном месте. Она должна опираться на несущие конструкции. Пожалуй для предварительной оценки конструкций той или иной планировки этого будет достаточно.
4. Инженерное обеспечение
Дом мало продумать, мало построить. В современном доме должен быть хороший микроклимат, должна быть вода, канализация, отопление и электричество.
Электрика на планировку практически не влияет, а скорее зависит от нее (от расстановки мебели, открывания дверей и прочее), но вот вентиляция, канализация и отопление должны быть зафиксированы в планировке на самых ранних этапах. Имеются в виду вент каналы, дымоходы, стояки канализации и воды. В общем обращайте внимание на наличие каналов в стенах на рассматриваемых планировках.
Они должны быть обязательно при санузлах, при кухнях, при технических помещениях, при котельных. Если их нет, это значит, что про вентканалы, дымоудаление и прочее никто не думал и эта планировка сырая. Это один из главных признаков того, что инженер или человек обладающий инженерными знаниями над этой планировкой не работал.
5. Связь планировки с фасадами
Планировка это только половина информации о том какой будет дом. Еще нужно продумать фасады, иначе получится недоразумение вместо красивого дома. И первый сигнал того, что фасады не продуманы это хаотично расставленные окна. Если окна разных размеров, или они не соответствуют тем помещением где располагаются, это первый признак того, что планировку детально не прорабатывали и окнам не уделяли должного внимания. Например, в гостиной окошко слишком маленькое, а в санузле оно во всю стену. Поэтому обращайте внимание на то, как располагается наружная входная дверь и окна. Есть ли в таком расположении логика. Если вы видите выступающий объем из здания и сделаны окна по бокам, они должны быть на одинаковых расстояниях от углов, иначе на фасаде это будет смотреться нелепо.
Такие вещи, если на них обращать внимание, сразу много расскажут о том объеме работы который был проделан в каждой конкретной планировке.
Следующий момент который касается фасадов это наличие крылец и террас. Очень много планировок, где просто нарисована входная дверь в никуда, то есть крыльца как такового нет. Если крыльцо не проработано, это значит, что и фасадов нет. Также и терраса не может быть какой-то абстрактной. Если подразумевается, что она накрыта, значит на ней должны быть расставлены колонны, предусмотрены входы и выходы на террасу и прочие детали.
Если вы находитесь на этапе выбора планировки, учитывайте перечисленные выше пункты, это облегчит выбор в пользу того или иного варианта. Надеемся, что это поможет вам лучше ориентироваться в планировках на просторах интернета.
С идеями хороших планировок, которые уже прошли предварительный отбор, можно ознакомится в нашем Телеграм канале Дорога к Дому. Будем рады, если это поможет Вам с выбором.










